Travaux

[INFO TRAVAUX]

  • Les travaux de construction d’un immeuble en lieu et place du hangar Ercor, rue Pierre Marzin, vont débuter prochainement. Les travaux d’extension de réseaux humides depuis la rue P. Marzin jusqu’au chantier débuteront le 13 avril pour une durée de 15 jours (vacances scolaires). Durant ces travaux l’accès et le stationnement au parking seront interdits, la circulation rue P. Marzin sera également interdite durant 3-4 jours. Les travaux de démolition du hangar devraient débuter le 27 avril. La durée de chantier est estimée à 1 mois et demi. Durant ces travaux l’accès et le stationnement sera possible sur une partie du parking voir plan.

 

  • Travaux d’extension des eaux usées secteur Penvern. Il s’agit de travaux d’extension du réseau d’eaux usées. La particularité de ce chantier est que le terrain est rocheux, ce qui explique la durée des travaux. Elle peut évoluer selon la dureté de la roche rencontrée. Les travaux démarreront le lundi 20 avril et se termineront le 27 juin 2026. Ces travaux seront réalisés en route barrée. Des déviations sont prévues, voir plan ci-contre. Renseignements: Nicolas Even, bureau d’étude Eau et Assainissement de Lannion-Trégor Communauté : 07 50 69 82 97

 

  • Dans le cadre de son programme de sécurisation de réseau, la communauté d’Agglomération va réaliser des travaux de renouvellement de canalisation eau potable rue de Kerangaffric. Durant ces travaux, qui débuteront le 4 mai pour une durée de 1,5 mois, la circulation y sera interdite. Selon l’avancement du chantier les riverains pourront accéder à leur propriété par un côté ou l’autre de la rue, ils devront toutefois laisser leurs véhicules en dehors de la zone chantier lorsque l’entreprise interviendra devant leur propriété.
  • Dans le cadre de son programme de qualité de distribution d’eau de réseau, la communauté d’Agglomération va réaliser des travaux de renforcement de canalisation eau potable chemin de Poul Ranet. Durant ces travaux, qui débuteront le 11 mai pour une durée de 1,5 mois, la circulation y sera interdite. L’accès au riverains sera possible en dehors des heures de chantier, par contre durant celle-ci l’accès sera difficile.

 

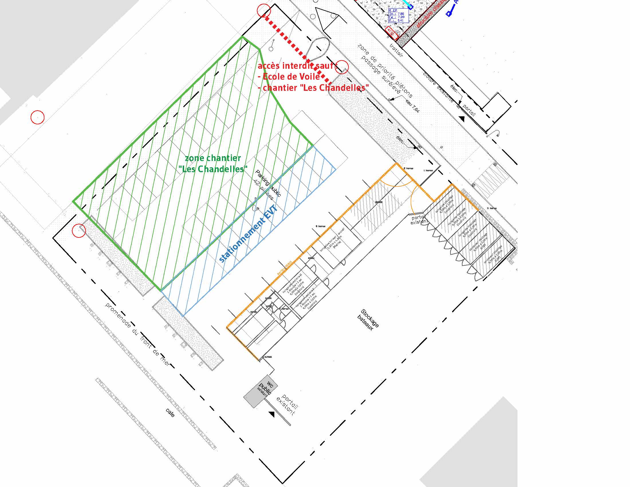
  • Dans le cadre du chantier de reconstruction du centre nautique, une installation provisoire pour le fonctionnement de l’Ecole de Voile de Trébeurden a été mise en place sur le parking devant le centre nautique. Cette occupation temporaire, couplée aux chantiers en cours aux abords, génère des perturbations. Aussi, afin de limiter les conflits d’usage, l’accès et le stationnement au parking est interdit jusqu’au 12 juin 2026, sauf pour les usagers de l’Ecole de Voile (détenant un macaron à ce titre) et du chantier « Les Chandelles »